La Junta de Gobierno Local, reunida esta mañana bajo la presidencia de la alcaldesa, Pilar Barreiro, ha aprobado definitivamente el proyecto de urbanización de la unidad de actuación número 13 del Ensanche, tras su exposición al público.
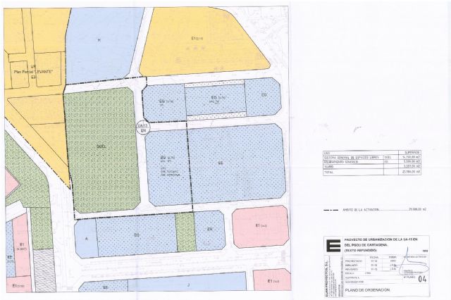
Como se recordará el objetivo principal de este proyecto es la creación de otro gran parque público en el Ensanche. En concreto, en una parcela de 26.800 metros cuadrados, entre las calles Sóller, Ciudadela y Mahón, a espaldas del edificio de la UNED, de los que 14.790 se destinarán a dicho parque público y 5.600, situados junto al antiguo colegio Antonio Arévalo, a usos terciarios, y más concretamente a la instalación de un supermercado.
El proyecto está promovido por la mercantil Inversora del Reino de Valencia S.L., que asumirá la urbanización del entorno e invertirá un millón de euros en la creación de la nueva zona verde y esparcimiento público, sin coste para el Ayuntamiento y bajo la supervisión de los técnicos municipales.
Entre las actuaciones se contempla igualmente la urbanización, iluminación y pavimentación de las calles perimetrales que conectarán la calle Mahón, con Ronda de la Unión.
La Junta de Gobierno que ha acordado fundamentalmente asuntos de trámite en esta sesión, ha aprobado también, entre otros, las bases para seleccionar urbanizador por el sistema de concertación indirecta en dos unidades de actuación de La Aljorra y el Estrecho de San Ginés.
