El alcalde de Cehegín, José Soria, y el concejal de Comercio, Empresas y Promoción Económica, Francisco Abril, se han reunido en el Ministerio de Economía y Competitividad con la directora general de Comercio Interior, Carmen Cárdeno, para avanzar en el proyecto de remodelación de la Plaza de Abastos de Cehegín, con el que el Ayuntamiento pretende modernizar estas instalaciones y convertirlas en el motor comercial de la zona centro de Cehegín. En la reunión mantenida en Madrid, a la que también ha asistido el portavoz de Industria del Grupo Parlamentario Popular en el Congreso de los Diputados, Teodoro García.
La Secretaría de Estado de Comercio ya se implicó en este proyecto, ya que fue la empresa pública Mercasa la que elaboró el estudio técnico y comercial y quien planteó las líneas que debe de seguir el nuevo edificio del mercado público de Cehegín.
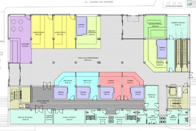
Según el alcalde, "la idea básica de lo que se pretende hacer ya está y ahora falta terminar de definir algunos detalles con los propios comerciantes de Cehegín y colectivos implicados, entre otros la posibilidad de que la planta superior de la Plaza de Abastos pueda destinarse a la instalación de locales para hostelería o para un pequeño supermercado de alguna cadena con las que se ha contactado".
La directora general ha mostrado su compromiso de colaboración, inicialmente con la elaboración del proyecto técnico, y ha emplazado al alcalde y al concejal para después de Navidad con la intención de concretar la forma de financiación.
El concejal Francisco Abril ha recordado que "Cehegín cuenta con este edificio en el centro del pueblo, en un sitio inmejorable, y queremos convertirlo en el motor comercial de la zona que contribuya a impulsar el resto de establecimientos. Para ello es necesario implicar al sector, comerciantes, asociaciones y emprendedores que pudieran estar interesados en instalarse, para llevar a cabo un gran proyecto".
