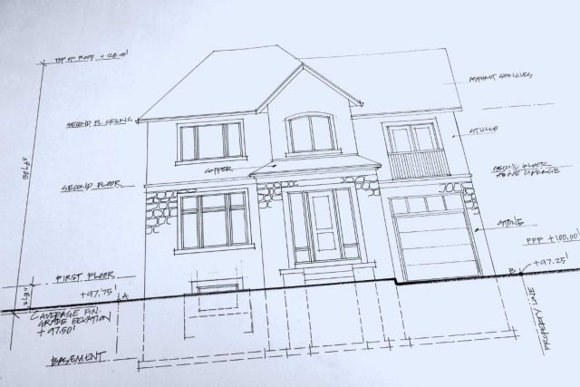
La ampliación de viviendas es una solución cada vez más popular para aquellos propietarios que desean mejorar y aprovechar el espacio sin tener que mudarse. Entre las opciones más solicitadas se encuentra la adición de un segundo piso, que permite incrementar la superficie habitable de la casa y añadir nuevas habitaciones. Un diseño común en este tipo de reformas es la incorporación de un dormitorio en suite, que ofrece un espacio privado con baño completo y vestidor, creando un ambiente de confort y funcionalidad. Esta opción se está convirtiendo en una alternativa atractiva para las familias que buscan más espacio sin perder la privacidad y comodidad.
Cuando se decide realizar una ampliación a un segundo piso, es fundamental contar con la orientación adecuada de profesionales del sector. Un despacho de arquitectos en Valencia puede ser el aliado ideal para planificar y ejecutar esta obra de manera eficiente y segura. Estos expertos no solo diseñan el espacio, sino que también aseguran que la construcción cumpla con todas las normativas y reglamentos locales, optimizando el uso de la estructura existente y proponiendo soluciones innovadoras. Además, un arquitecto puede ayudar a maximizar la luz natural y la ventilación, dos aspectos clave para hacer que los nuevos espacios sean más agradables y funcionales.
El diseño de un segundo piso puede transformar radicalmente la distribución, creando un ambiente más privado y relajante para los propietarios. Este tipo de habitación suele estar equipada con un baño completo y un vestidor, lo que ofrece comodidad adicional. Además, la posibilidad de contar con una terraza o balcón adjunto permite disfrutar de un espacio exterior privado, ideal para momentos de relax.
En este sentido, en Goor Studio, comentan: “La ubicación del dormitorio en la parte superior de la casa proporciona una separación efectiva de las áreas comunes, lo que aumenta la sensación de intimidad y tranquilidad, especialmente si se incorpora una vista panorámica o un diseño que optimice el flujo de aire y la luz”.
La edificación también implica una evaluación cuidadosa de la estructura y los materiales utilizados. Es crucial garantizar que los cimientos de la casa puedan soportar el peso adicional del nuevo piso, lo cual requiere un estudio exhaustivo por parte de ingenieros y arquitectos. Además, en proyectos como este, se pueden considerar opciones sostenibles, como el uso de materiales ecológicos y soluciones de eficiencia energética, lo que no solo contribuye al bienestar de los habitantes, sino que también mejora el rendimiento energético del lugar.
La inclusión de un dormitorio en suite no sólo mejora la calidad de vida de los residentes, sino que también puede aumentar el valor de la propiedad. Este tipo de construcción es una inversión a largo plazo que puede resultar muy beneficiosa en términos de plusvalía, ya que los compradores valoran mucho las características de confort y privacidad. Además, el diseño de una obra bien ejecutada puede hacer que una casa pequeña o de tamaño medio se convierta en una propiedad más atractiva y funcional para futuras generaciones.
Un proyecto de edificación a un segundo piso es una excelente opción para quienes desean maximizar el uso de su vivienda sin perder comodidad. La planificación cuidadosa y la colaboración con profesionales adecuados garantizan que la obra se realice de acuerdo a los estándares más altos. Con el aumento de la demanda de casas más grandes y personalizadas, este tipo de reformas ofrece una solución viable y accesible para quienes buscan mejorar su espacio habitable y disfrutar de una vida más cómoda. Al invertir en un diseño bien pensado, los propietarios no solo aumentan la funcionalidad de su hogar, sino que también invierten en su calidad de vida y bienestar.
