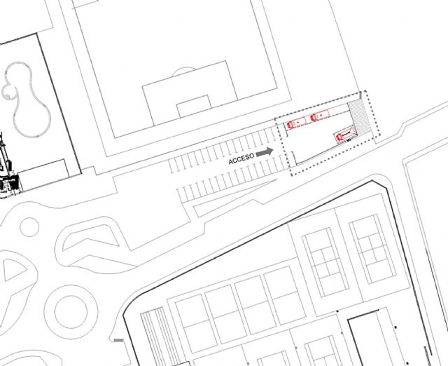
El Ayuntamiento de Las Torres de Cotillas acomete la recta final de las obras de construcción de un área de servicio para autocaravanas, que se ubicará en la avenida Reyes Católicos junto al campo municipal de césped natural. Esta instalación ofrecerá a los usuarios de este tipo de vehículos una zona específica que permita el estacionamiento limitado para realizar debidamente las operaciones de repostaje de agua potable, eliminación de aguas sucias y avituallamiento.
"Esta área de servicio estará perfectamente delimitada y contará con un punto para la toma de agua potable y eliminación de aguas sucias, zona con desagüe para la limpieza de las autocaravanas, acometidas de agua y saneamiento, cartelería informativa", informa el concejal de Urbanismo y Dominio Público, Francisco Fernández Baño.
Actualmente en el entorno hay municipios, como Murcia, Mula, Lorquí o Ceutí, que cuentan con este tipo de instalaciones de titularidad municipal. "Estos espacios permiten mejorar las condiciones de movilidad en autocaravana con un mayor respeto al medio ambiente", explica el alcalde torreño, Joaquín Vela Fernández, que destaca que este proyecto situará a Las Torres de Cotillas como zona de paso de los autocaravanistas, con su correspondiente beneficio económico para la localidad.
